A New Electronics Workbench and More.

A New Workbench, Computer Table, Plenty of Bookcases, and expanded Parts Storage.



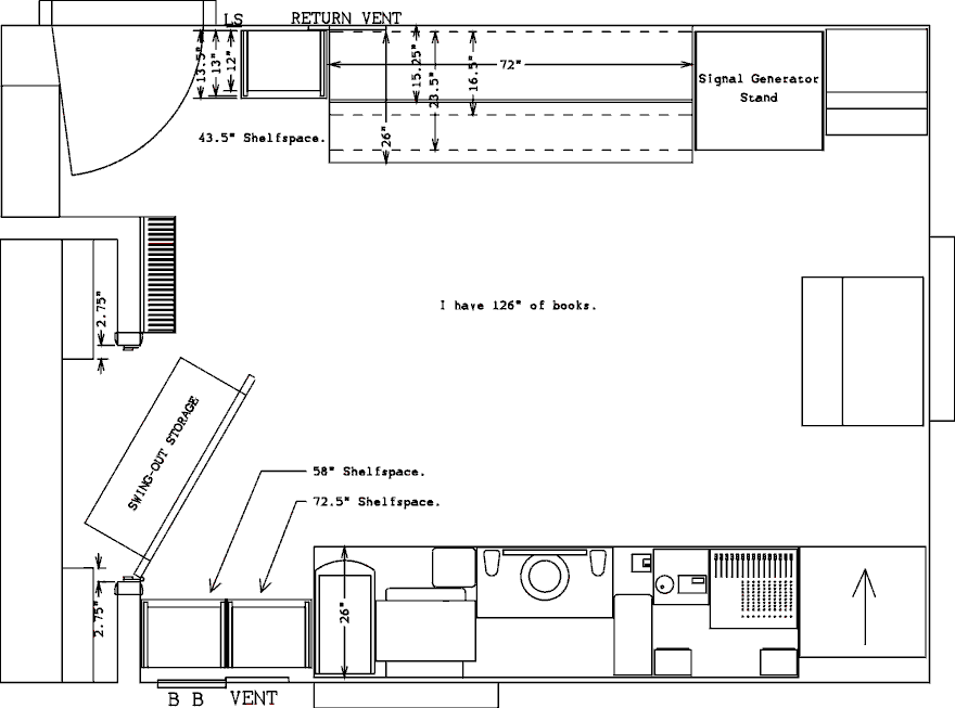
The Plan.

This is the floor plan I am heading for. North is at the top. The first group of photographs below will show the room in its present state and the text will refer to this line drawing to describe what is coming.


This first picture shows most of the north wall. The edge of the door can be seen at the left and the swing arc of the door is shown in the upper left, north west, corner of the floor plan above.

The original darkroom table with its 45 degree bracing is at the bottom. This table was very much overdesigned. I'll bet it would have held a ton. Above the table are three shelves which were added on and added to after chemical photography was phased out. The shelves held a combination of books and electronics equipment. Most of this stuff had been moved to storage before these pictures were taken.

A bookcase will stand next to the door next to the 8 foot long workbench. This bookcase will have room below to store a couple of guitars, a banjo and an electronic keyboard. These were under the table but had been moved before this photo was taken.


Here we are looking into the north-east corner of the room. The parts storage which is under the table and also under the workbench will be moved to a location behind the door. That is the rectangle located there in the floor-plan.

An open relay rack will stand in this corner which holds two power supplies, a WWV receiver, and a frequency standard.

The old workbench will be temporarily moved to the north wall after the table and lower shelf have been removed. The ham radio desk will then occupy the east wall and the sheet of plywood will be removed from the window.


This picture looks into the south-east corner of the room. All of the wall mounted shelves will be removed and a new design will take their place. The computer table will be shifted to the right and the sound rack which is shown in the next picture will be placed in the corner.

A new one piece table top will be mounted on the same legs and the entire computer arrangement will be inverted. The mixer will go next to the sound rack with the sequencer next to it and the CPU next to that. Then the monitor, speakers, and keyboard, followed by the printer and scanner.


In this picture you now see the sound rack which contains a digital tape recorder, a compressor/noise gate, a sound module, a home made mixer, and a real to real tape deck. The ham radio desk is to the right of the sound rack. It will end up on the east wall.

Also visible in this and the next picture is the closet. The original sliding doors have been removed, many years ago. The interior shelves will be changed little but there is a fair amount of wasted space. I have devised a swinging door with storage built into it.


The swing out storage will ride on casters so the hinges will have nothing to do but keep the whole thing from falling over.

The door to the room was closed to show the behind the door storage. The small parts storage will be moved to inside the swing out storage. The larger parts drawers that were shown earlier under the table and bench will be placed here and will rise to just under the shelf which is near the ceiling.


Day One

Friday July 30, 2010.


Here we see that the bottom shelf is already gone and removal of the table has begun. I didn't know enough at the time to build real trusses but the 3/4 inch plywood took care of that. As I remove the table top the mountings will tend to collapse. I must have built the table top, braced it with temporary legs and put in the diagonal braces last. The remaining piece of plywood is 8 feet long and the ledger board and front board are 12 feet long. I originally brought them in through the window. I think I'll use a saber saw on them to get them out the door.

One more note. This table was built almost 40 years ago. The plywood is really quality stuff. These days you have to spend some big bucks to get plywood of that quality. The 2 by 4s are of such a high quality that I'm sure you couldn't get wood that good at any price today.


Day Two.

Monday August 2, 2010.


After removal of the old darkroom table some debate ensued as to whether to paint the wall. When I figured out that none of the existing shelves could be used in the new design they were removed and the paints won out over the no paints.

The brown stains in the lower left corner of the picture are the results of a chemical spill. Some of the chemicals ate through a plastic bottle and ran down the wall until they came to the ledger board of the table. They ran along the board until finding an available path downward.

Tomorrow morning there will be another trip to Lowe's followed by spackling and sanding, cringe. The walls will have to be painted one at a time because of the amount of stuff in the room that can't be moved out simply because there isn't any place to put it. Stay tuned as the plan unfolds and you will see.


Day Three.

Tuesday August 3, 2010.


Our shopping trip turned out to take a little longer than planned. Don't they always? On the way home we passed the railroad museum and for the nth time we asked each other "when are we going to stop in and take the tour?" "Why not today? We don't have anything perishable in the back of the car." So we stopped. After all, we are retired and what does it matter if we spend a few hours away from the project that is pending at home?

We had bought a type of spackle that goes on pink and turns white when dry. Tomorrow we sand. I'm trying to sell Sue on the idea of using the random orbital sander. Today she is not buying. Maybe the market will change after she works on a spot or two. The spackle was used to cover the worst of the chemical spill. Maybe that will keep it from showing through the paint.

These modern digital cameras set their white balance by averaging over the scene. That works for complex scenes with many colors. But if the scene is predominantly one color such as a yellow wall it turns the yellow to gray. I taped a piece of paper to the wall to make it easier to white balance the picture in post production.


Day Four.

Wednesday August 4, 2010.


Here I am shown applying primer to the wall. That chemical spill and all the patching needed it to be covered successfully.


Sue is seen applying paint over the primer. I had rolled the area to the left and sue was painting in the corner. The color is a very light blue which is almost too subtle to show at all in these pictures.


Day Five.

Thursday August 5, 2010.


Today we cut some wood for new shelves and painted in the corner. That's something we should have done on the painting day but didn't. Now the wall that the end of one of the shelves buts against will already be painted.

The color shows up best near the floor in the corner where the shadow of the workbench cuts off the light from the overhead florescent light.


Day Seven.

Monday August 9, 2010.


These two shelves took two days because of all that was involved. First the wood had to be cut to size, A splice made because the top shelf is longer than 96 inches, the anti fall-off ends attached, the shelves painted, allowed to dry, and mounted on the wall.


Day Eight.

Tuesday August 10, 2010.



Left above shows the temporary arrangement of the North wall. The old workbench is in place where the new one will eventually reside. The new bench will not be as tall which will enable equipment to be stacked in two layers. I have already decided to make the new bench 6 feet long, the same as this one, instead of 8 feet as in the original plan. The remaining 2 feet will be taken up by a display cabinet for antique radios. This arrangement will allow them to be operated for demonstration to friends and family.

The open rack will be placed in the corner which is why the second shelf does not go all the way to the wall. A bookshelf will stand on the right between the display cabinet and the door.

Right above shows the east wall after the old bench has been moved. There was an air duct made of pieces of cardboard boxes the brought the air from the vent, seen at lower left, up to the ceiling to get it over the bench. The top end of it can be seen in the second picture from the top of this page. Also seen is a deflector which turned the air draft down into the living space. The duct has been removed and will not be replaced. The vent will remain clear.

The sheet of plywood was removed from the window and temporarily replaced by a piece of blue cloth. A debate is currently underway as to whether to replace the original plywood with a new piece that is painted to match the walls or cover the window with plastic to reduce heat transfer and than hang curtains.

The next step is to remove the contents of the shelves shown at right, then repair and paint most of the east wall.


Day Nine.

Wednesday August 11, 2010.


This is the south east corner of the room. Compare that with the before shot above. The plywood will be removed from this window as well. The curtains have won out over new sheets of plywood. SWMBO has promised that she will pick out masculine looking curtains, if there is any such thing.

The computer was completely disassembled and reassembled in the room that serves as Sue's office. The computer that was there was moved to the Den. This game of musical computers will have to be replayed in reverse after work in the electronics room is finished.


Day Eleven.

Friday August 13, 2010.


Filling holes in drywall and sanding doesn't provide much that is photogenic but it still takes time. One day of fill and sand followed by another day of painting yields these results. Rome wasn't built in a day you know.


Day Thirteen.

Tuesday August 17, 2010.


These two days took us through cutting, assembling, and painting the shelves. The bottom two shelves must end where they do so the sound rack will fit in this corner. As Murphy's law would have it they end just short of the stud. If you look carefully at the picture you will see that the solution was to fasten a piece of plywood to the stud and then mount the shelf brackets to the plywood. This insures that the ends of both shelves will have full support.


Day Fifteen.

Thursday August 19, 2010.


Filling holes, sanding, priming, painting, and watching the paint dry took two days. This was a cause for celebration as the last of the yellow disappeared beneath the more pleasant blue. Sue had hated the yellow from the day we moved into the house. She never made a big issue of it because it was my room. I too am glad to see it go.


Day Seventeen.

Saturday August 21, 2010.


Sue put in a lot of work altering the size of the store-bought curtains by hand. Her work is much appreciated. Although they can't be seen there are roll-up shades behind the curtains.

The next step is to build the swing-out storage in a door for the closet. All of these steps have to be done in a certain order as the results of the previous step make room for the next one.


Day Twenty Two.

Friday August 27, 2010.


An entire week brings us to the status pictured above. These two windows are the only ones original to the house. Newer windows with improved thermal properties have been installed in the rest of the house. Plastic film has been placed over the window frames to reduce thermal transfer across the windows. The curtains seem to help as well. It is just as good if not better than the ¼ inch plywood that used to be there.

The reverse musical computer game was played and what took so long was reconnecting the sound recording system. As I took it apart I found many cables that did not have either end connected. I decided the best thing was just to pull everything out and start with a clean slate when it was time to reinstall. Somehow I managed to figure out how things went back together and it will play as before.

The original plan was to use the same table legs and make a new tabletop from a sheet of plywood. Plans do change as a project this large moves forward. Instead the original tops were retained. The legs on the left hand table were removed and reinstalled approximately 4 inches to the left. That may not seem like very much but it makes a big difference in the placement of a UPS on the floor between the two sets of center legs. The two tables were made into a single unit by a piece of plywood that spans the seem and is fastened with screws, no glue. If it ever becomes necessary the two tables can become two separate tables again.

The computer, internet over cable, and telephone over cable, are all back in place and working fine. Maybe the rest will be easier. Don't count on it.


Day Twenty Six.

Thursday September 2, 2010.


That's right, it took us 4 days to make a new test lead rack. You can see the old one in the fifth photograph in the original before group at the top of this page. The home made one is bigger than the old one. The fact that it is already almost full without adding any additional leads tells the story. It was made by cutting slots on the table saw with a dado blade and the rounded ends were cleaned up with a Forstner bit and a chisel.

This picture was taken from a high vantage point to better show the rack.


Monday September 28, 2010.


The day count has been lost because of days taken off and work on this dado cutting jig which although necessary to complete work on the room modification project is not really part of it. The "page last updated" note at the end has been eliminated. Duh, the date of the last entry is the last time the page was updated.

On the left you see a top view of the jig with the router sitting on it. At right the jig has been flipped end for end to show the bottom. Below is the drawing of it with all dimensions. If you have any questions about it drop me an email and ask.


Wednesday November 10, 2010.


It has been a while hasn't it. Things have been happening but they weren't all that pretty so I haven't been reporting on them. This is the carcass for the swing out storage. It's a long way from being finished but this is it. It is what it is.


By Request.

Many of you have asked to see good pictures of Sue and me so you could see what we look like. On a particular day we were all dressed up with someplace to go and so we took pictures of each other. One we took with both of us in the same picture came out blurry. I must have set it in close-up or infinity mode when I was trying to set the self timer. If you would like to know more about me and Sue click here.


Thursday February 3, 2011.


If you are having trouble orienting yourself to the pictures the carcass is laying on its back on the floor and the camera is at a high vantage point. The picture at top left shows that a face frame consisting of aprons has been added to the carcass. The left and right aprons will provide mounting for the hinges and latch. The bottom apron will hide the casters that will support the weight of the carcass and contents.

At right the frame and panel doors have been set in place to see how they will look. I bought a cope and stick router bit set to make the doors but I didn't know how to use it. Trial and error resulted in some wasted material and time. The third time was the charm and the doors came out satisfactory.


Tuesday May 10, 2011.


As you can see it has been more than 3 months. The pictures above are what has been keeping me from working on the storage cabinet. Upper left is a stand for an Intel reader which is a camera and text to speech converter. Upper right is a white board, actually two of them, that are mounted on the inside of the shop doors. Bottom is a stand for holding bananas so they won't get bruised from lying on the counter. Plastic ones that can be bought in stores often break so I decided to make one that would last.


Now back to the original project. When you're up to your ass in alligators it's hard to remember that you set out to drain the swamp. With a few of the snapping alligators out of the way I was able to hang the doors.


Tuesday May 24, 2011.


The doors were removed for finishing. Then the support wheels were mounted. Some may think I should have used the word "caster". As I understand it the definition of a caster is a wheel that is capable of rolling and swiveling for steering. These wheels don't need to swivel because the hinges will dictate the center of rotation and they have been set on a tangent of a circle with the hinge-pins at the center.


Tuesday June 14, 2011.


Now, the problem is how can I move something this big from the shop into the back room of the house. No doubt casters, and I do mean casters this time, will help. I don't think Sue and I can do it alone so I am calling in John Smith who has given his help many times.

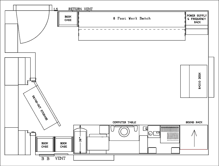
Anyone who is vary observant of small details will note that the floor plan at the top of this page shows the door/cabinet hinged on the right while the picture shows the hole for the knob is on the right. That's another production change. The new floor plan is shown below.


Some Changes to the Original Plan.

I have gone through a couple of iterations on room layout. I have finally settled, I think, on a 6 foot workbench and a stand for two large HP signal generators I haven't been able to use because I didn't have room for them. Below the two signal generators are more drawers. It seems that like clamps in a woodshop you can never have too much storage.

Also the musical instrument storage that was originally planned for the bookcase next to the door has been removed. This allows 4 more shelves for books or records, counting the bottom.


Friday June 24, 2011.


Meanwhile back at the ranch, the closet needs a little preparation before it can receive the storage cabinet. The shelves on each side will interfere with the closing of the cabinet /door without some modification. If you look back to "Day Twenty Six" above you will see that the side shelves extend out in front of the door opening. Cutouts have been made so the cabinet/door will clear them when closed.


Thursday June 30, 2011.


The cast of characters is shown in the left picture below. Well 3/4 of them anyway. The man to my left is John Smith, really, that's his name, The woman to my right is his wife Bonnie, and Sue is behind the camera.

The six picture sequence above gets the swing-out storage cabinet from the shop to part way up the front steps.


The five picture sequence above gets it from just inside the front door to the entrance to the back room.


Once inside the room the cabinet needed to be stood up to rest on the three wheels and the temporary block. To keep from hitting the ceiling it first had to be laid down on it's back and then lifted so the short diagonal is between the ceiling and floor instead of a long one. The casters and wheels made that more difficult because the end of the cabinet which was resting on the floor wanted to run away from those lifting it.


The casters have to be removed and here you see John and I working on opposite sides to remove the nuts and bolts.


In the left picture I am using a bench chisel to form a bevel on the edge of the hinge mortis to accommodate the hinge barrel. Cutting the mortis was not photographed due to failing batteries in the camera. Because we were burning daylight we elected not to stop work while the batteries were replaced. Eventually I had to locate another camera to finish the photography assignment.

In the right picture I am using a self centering drill bit to make pilot holes for the screws that hold the hinge.


Bonnie, in her role as designated supervisor is shown doing her job to perfection. It's not easy to be a supervisor especially when she has to make sure that we two guys do everything right and tell Sue when to take a picture.


Before the door can close the handles used to move it from the shop to here must be removed. While I made a trip to the shop for yet another forgotten tool Bonnie makes sure that John removes them correctly.


Now that the handles are removed the door can be swung shut.


I inserted a short pencil into the latch cutout to draw a circle around the inside of the spring bolt cutout so we would know where to mount the strike plate. Sue comes out from behind the camera to darken the line to make it easier to see.


Then John, under my watchful eye, I only have one, drills out the hole to allow the spring bolt to latch into the strike plate.


After I mount the knob and strike plate Sue makes another cameo to clean up some of the sawdust.


After John and Bonnie went home it was my job alone to populate the empty space with the small parts storage cabinets. They are fastened to the rear wall of the swing-out cabinet with sheet metal screws. The storage drawer cabinets have keyhole mountings in the back but it was easier to remove a few drawers and put the screws in directly through the holes. They won't fall out when the cabinet is swung open or closed.


Friday July 1, 2011.


Next day I was up at the crack of 10 AM to bring in the used tube storage from the shed and place it in the space planned for it. The right hand door was also hung which brought two disappointments.


With the hanging of the left hand door one of the problems was apparent. The doors were in perfect alignment when originally hung in the shop. They were removed for finishing and to reduce the wait of the cabinet to as little as possible for moving.


The doors were anything but square and the left hand door had to be planed at the top and the right hand one at the bottom. The closet door is out of square which is frequently the case in older houses and it racked the cabinet miss aligning the doors. After adjusting the fit I found that I had miss measured the depth of the plastic storage cabinets. Oops?


Removing the tube storage allowed the doors to close. Oh well, I still consider myself a novice woodworker and this is the biggest project I have tackled to date. Looks like it tackled back. In case you have forgotten this project started out to build a new workbench. Here I am up to 75 pictures and I haven't even started on the bench yet.

I have been making some measurements on the boxes which currently serve as tube storage and some volume calculations. I have also done some drawings and the present plan is to build wooden drawers to slide into the space at the bottom of the cabinet. I'll probably have to build them a little out of square to fit into the cabinet. There doesn't seem to be anything I can do to correct it.


Thursday July 21, 2011.


The plan to build wooden drawers has been replaced by getting some plastic storage boxes from the lawnmower house, (blue), and buying a few more from Lowe's, (yellow). This solution was suggested by Sue. I still want to build drawers because they will hold more, provide better organization, and look better.

The step stool is an absolute necessity.


They say one picture is worth a thousand words but I have never seen or heard a similar equivalency between a moving picture and a number of stills. To view a short video of the swing-out storage click here.


Monday January 23, 2012.


Wow. 6 months and 2 days. What have I been doing all this time? Honey do projects. Sue has discovered that I can make things exactly the way she wants them instead of buying something that is a compromise. As time goes by I get more and more requests for household items. I really can't complain though, she lets me buy any tool I want. All I have to say is "to do that project I need a 'whatever' and she says 'well buy it' so I do".

The cut pieces shown are the sides, shelves, bottoms, and tops, for 3 bookcases for the back room. Cutting them out took about 5 days and the next step is to cut the dados in the sides to accept the shelves and bottoms. Next step is the behind the door parts storage and then I can start on the workbench. I'll bet you thought I would never get there. I was beginning to wonder myself.


Tuesday February 14, 2012.


I have decided to try applying finish before final assembly. This obviously posed picture shows the two sides on the floor where I would have to stand to finish the shelves which rest on old towels over the sawhorses. The dados in the sides were covered with painter's tape to keep finish out of them. The shelves also have their ends protected by tape. The piece closest to the camera is awaiting its last coat. This is the top. The two sticks just beyond it are trim which goes around the top of the bookcase. Its mitered ends match up with the piece of mitered trim which can be seen fastened to the front of the top.


Saturday February 18, 2012.


My plan to finish the pieces and then put them together seems to have worked out very well. I decided to try this experiment on just one of the bookcases and if it worked out I would apply it to all. It did, so I will.

Note the opening between the two bottom shelves for the HVAC vent. In the past I had built furniture that blocked off vents. I have vowed never to do it again.

The next time you see this bookcase it will actually have books on it.


Wednesday March 7, 2012.


An update.

All work has ceased because I have contracted a case of the shingles. It is very painful and keeps me from doing much of anything. Others who have had it indicate that the recovery time can be fairly long. It may be a while before I am able to get back to work. This does not make me happy. Unfortunately there is nothing I can do about it. I'll be back to work when I recover. Stay tuned.


Wednesday April 25, 2012.


It seems as though I am as much over the shingles as people ever get. There is still an occasional twinge of pain and a little skin sensitivity in the area where the rash first appeared. But I am able to work again.

The second of three bookcases is now finished and in accordance with my promise made above they have books on them. When the third bookcase is finished the books that are partially obstructing the vent will be removed.


Thursday May 17, 2012.


The workbench was started today. The behind the door storage has been put off as a reasonable substitute has been found. A few of the cardboard storage boxes have been placed on the shelves of the bookcase as shown. The remainder are in empty spaces in the temporary behind the door storage. So, after about 1 year and 10 months the long awaited workbench is at last underway. Pictures to follow.


Tuesday June 19, 2012.


"So where have you been for the last month?" Working. Rome wasn't built in a day you know. "If you were building Rome I could understand. Are you ever going to finish this workbench?" Keep your panty hose on, I'll finish eventually.

The picture shows the two sections of the base cabinet. I know it is hard to tell by this picture but the base is built in two sections to make it possible to get it into the room and out again someday. One drawer installed, 19 more to go. As it sits in the shop at this moment there are two drawers installed and A third glued up and drying overnight.


Thursday June 28, 2012.


More drawers have been added to the right hand cabinet base. 8 down 3 to go. Yes, I do know how to count. The empty space on the right will be a door which will give access to a variac which will be energized from an isolation transformer. For working on those AA5s you know.


Although the shop was a comfortable for working 72, outside was not so comfy. We have had only 0.52 inches of rain in June and there is no rain in sight.


Monday July 2, 2012.


What was that you said last Thursday? Today we got 2.5 inches of rain in about half an hour. Another 0.5 inches came in a bit more leisurely manner over the next hour. So on the second day of the month we have more than half of what is normal for July. Now there is no way of knowing if we go back into the drought or if I will need to look up those plans for an ark.


Friday July 13, 2012.


All of the drawers are finished. In case you are wondering I intend to add decorative fronts and trim molding to the edges of the plywood that makes up the base cabinet.

Some of the drawers have been removed and the two halves have been bolted together with carriage bolts. The work surface has been set on top but is not fastened down. The chair gives it scale. A much taller man would likely find the bench too low and the leg room insufficient but I am not a larger man, I am me! I designed for myself and larger men can build their own bench.

Bob the builder bear sits on the work surface admiring his handiwork. That's right, he claims to have designed and built the bench. That's the way teddybears are. They do none of the work and claim all the credit.


Wednesday August 8, 2012.


The bench is moving forward. Oak veneer plywood will cover the pine plywood, well, most of it anyway, and also support the equipment shelf. A few days ago I had the whole thing dry fit including the back but I forgot to take a picture before taking it apart. You'll just have to wait until it is all put together. This picture also illustrates Max's law. Any flat level surface in a shop will accumulate as much as it can hold.


Wednesday September 5, 2012.


Now you can see how the overall plan will fall out. The decorative fronts of the drawers will cover the edges of the plywood except at the center of the cabinet base where the two sections join. The center and sides have been covered with facing. The item in the second row at the right is not a drawer but a door. This covers the Variac.


With the new bench nearing completion the next job was to demolish the old one. This was not accomplished without some bloodshed. It was nothing requiring an emergency room visit. After a bit of first aid from Sue the work continued. In about 4 hours the bench was reduced to a pile of lumber leaving an empty space behind. It took so long because damage to the wood was kept to a minimum and all nails removed. The wood will be recycled as furniture for the woodshop.


Wednesday September 12, 2012.


The work surface has been removed and the two sections of the base cabinet have been separated to make work easier. The drawer fronts have been installed on this section. Not all the decorative covers have been reinstalled for this picture but I assure you they will be at the time of final assembly.


Thursday September 20, 2012.


The original variac door wasn't as wide as it needed to be so I made it again. This was no big deal since there was plenty of the ¼ inch oak faced plywood left over. Looking closely at this picture I noticed that the middle feet were plywood edges. This is a tiny thing and probably most people would have never noticed but I would always know there was plywood edge exposed. Tomorrow I will cover it with small pieces of the same wood used as the drawer fronts. After that comes sanding.

You may notice that the top right drawer front is lighter than the rest. It was likely fortunate that the drawer fell over just before being finished and damaged an edge enough to require replacement. I got a 40 grit belt for my belt sander and sanded all the way through the 1/4 inch plywood front. The new one is a much better match for the others.


Tuesday September 27, 2012.


As was done with the swing-out storage before it the bench base cabinets are moved from the shop to the electronics lab. The base is separated into two halves because when fully assembled it is too long to go around the corner in the hallway.

The two halves are bolted together, the work surface added, the sides and back installed, and the instrument shelf is put in place.


Tuesday October 9, 2012.


This view will never be seen again as the bench has been backed up against the wall and fastened with two sections of 2 x 4 which were planed to match the depth of the lower section. They were screwed to studs in the wall and the bench in tern screwed to the 2 x 4s.

Twin line cords are plugged into the duplex outlet, which also will never be seen again, to supply plenty of power to the bench. They pass between the two 2 x 4s. There are two plug strips on the back of the equipment shelf, one in the work area, visible in most photos, an isolation transformer followed by a variac, and lights. The isolated variac outlet is visible in the picture below. All of these are controlled by the switch on the front which is visible in the final picture.

There are two unswitched outlets on each end near the back. These replace the outlet which is now inaccessible. The empty electrical box is visible in the picture following the date "Wednesday September 12, 2012". You can also see one of the unswitched outlet boxes in this picture.


Wednesday October 10, 2012.


Bob the builder bear returns to examine his finished product. The one empty drawer position is visible at upper right. As noted earlier the decorative front was broken as the result of a fall from the woodshop's workbench just before the finishing process began. Extraordinary measures made possible the replacement of the decorative front without having to make the entire drawer over again. Most of the other drawers are already filled with junk, er, stuff, er valuable items.


Tuesday October 16, 2012.


IT IS FINISHED. I'll bet you thought I would never get here. Frankly, I was beginning to wonder myself. But here it is, finished and usable at last. Now maybe I can get on with several projects I have been putting off for the last two years plus.


Signal Generator Stand.

The most recent addition to the electronics shop is the signal generator stand, above and at right below. It holds, top to bottom, an HP 606B, HP 608D, and a home made generator built around a General Radio model 2142 Unit Oscillator.

The modulation meter in the 606B was sticking and I had to replace it with a smaller but deeper meter with a 0 to 100 scale. I hope this is a temporary fix. All other parts of this generator work fine.

The 608 also has a sticking meter, the RF Level meter. In this case I can live with the problem because it sticks above the calibration mark. I had to replace a 6BC4 inside the RF shield. It is a buffer tube so the calibration was uneffected.

I built the bottom generator before obtaining the HP 606B. The GR unit oscillator is unique in that band 1 tunes from 0.5 to 5 MHz and band 2 tunes from 5 to 50 MHz. I installed a detector inside the shield and built a servo circuit to regulate the B+ to hold the output amplitude constant as the frequency is changed. It is very handy for finding the upper 3dB point of an amplifier without having to plot the entire frequency response. It has just come out of several years of storage in the attic and probably needs its electrolytic capacitors reformed.

The Workbench is Finished.


It's not over yet. The finishing of the workbench seems to be a good place to break off and go to another page. This story won't end until the entire room has been refurnished in the same style as the workbench. Yet to come are a new computer desk, a major revision of the sound system, and ham radio desk.


The story continues.

Home